PRÈS DU CIEL
Création d'appartements dans les combles d'un immeuble patrimonial
Ensemble tournant sur les rues de Chandieu et de Vermont, les trois immeubles d’habitation conçus par les architectes Mahler et Marti en 1911-1912 affirment un langage homogène. Sur le domaine public ou sur la cour, la composition se veut claire et harmonieuse, avec des matériaux variés soigneusement mis en œuvre et un décor fin, sans luxe ostentatoire. Opération immobilière réussie, la réalisation conserve encore de nombreux atouts grâce notamment à la situation très centrale et la présence de quatre parcs publics à quelques centaines de mètres à peine (Trembley, Vermont, Beaulieu, Cropettes). Marquant l’angle et tourné vers l’est, l’immeuble central appartient à la même famille depuis plusieurs générations. Assurée au fil des ans, une gestion sage a permis de maintenir les qualités intérieures et extérieures, sans céder aux tendances des modernisations inutiles qui, de façon sournoise, sont capables d’altérer irrémédiablement l’identité d’un bâtiment.






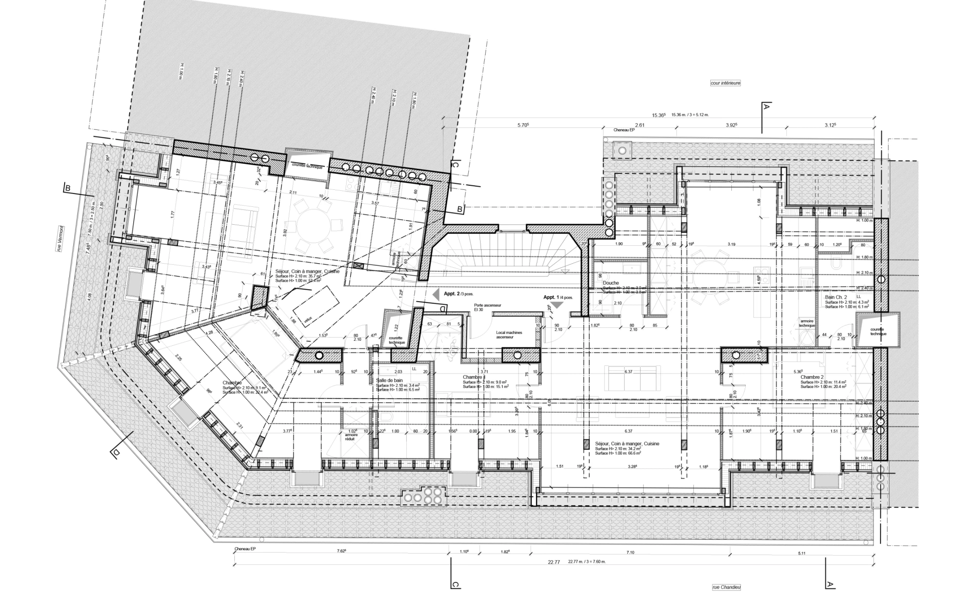
Cet état laisse sous la toiture un volume intéressant, occupé par une buanderie, une machinerie d’ascenseur et des locaux de débarras réservés aux locataires. Dès lors que ces derniers bénéficient aussi de caves, c’est un joli potentiel qui se révèle. Aux inconvénients concrets (morphologie de toiture compliquée, faiblesse statique de la charpente) s’opposent les avantages d’une situation en hauteur, où le charme des greniers se combine avec la possibilité de grands dégagements visuels sur les toits voisins, les montagnes et le ciel. En phase avec l’histoire de l’immeuble, les conditions du mandat s’imposent avec évidence : une exploitation respectueuse de l’espace pour la création d’appartements locatifs. Les diverses études de faisabilité délimitent les surfaces légalement habitables, repèrent les accès et examinent les besoins techniques. Surtout, elles définissent des concepts simples, éventuellement adaptables au dernier immeuble de l’ensemble encore sans combles aménagés. La planification pointue intègre les exigences d’un confinement pour désamiantage et, plus généralement, veille à la bonne marche d’un chantier conduit dans un immeuble habité.
Le projet propose deux appartements de trois et quatre pièces. L’agencement profite de la situation existante (courettes techniques ou escalier d’accès) et offre des distributions fluides pour un apport maximal de lumière. Trois grandes lucarnes –deux sur la rue, une sur la cour– éclairent généreusement les espaces à vivre, alors que des châssis inclinés amènent un jour naturel jusqu’au plus profond des chambres et des salles d’eau. Tout est dimensionné selon la surface utile disponible et calibré en fonction de la structure de charpente qui, maintenue dans son état d’origine, se voit simplement renforcée par des pièces neuves ponctuelles. Grâce à la valorisation de la substance ancienne, l’habitabilité confortable créée ex materia ne perturbe pas la lecture d’origine des espaces. L’esprit du lieu est respecté par des finitions audacieuses, en adéquation avec l’affectation première. Une ambiance de grenier ou d’atelier présente dans toutes les pièces, assumée par une chape au sol peinte en gris ou des cuisines et des sanitaires traités avec une grande sobriété, le tout évidemment mis en place avec soin et d’une esthétique résolument moderne. Une contemporanéité confirmée à l’extérieur, où les lucarnes se parent de zinc titane, en contraste avec les ferblanteries de cuivre d’un toit désormais isolé.

Étape importante dans l’existence de l’immeuble, cet aménagement de combles ne s’inscrit pas comme une rupture. Comme autant de réponses données aux ambitions du programme et aux contraintes de l’existant, les options claires et franches du projet ont été dictées par la compréhension fine des lieux. Le regard s’est voulu à la fois humble et lucide, au service des habitants et d’une architecture aujourd’hui plus que centenaire.


